STUDIO A

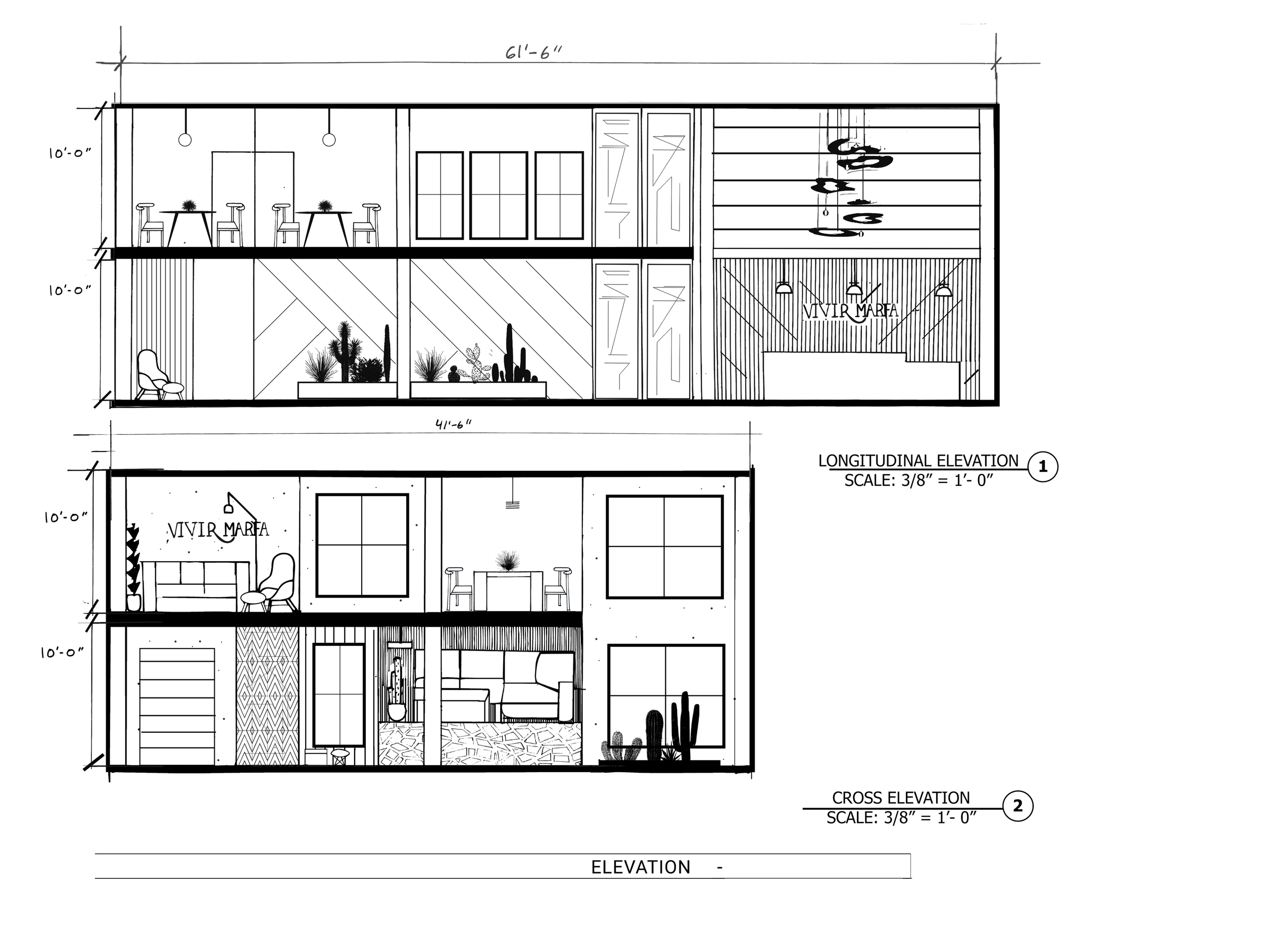
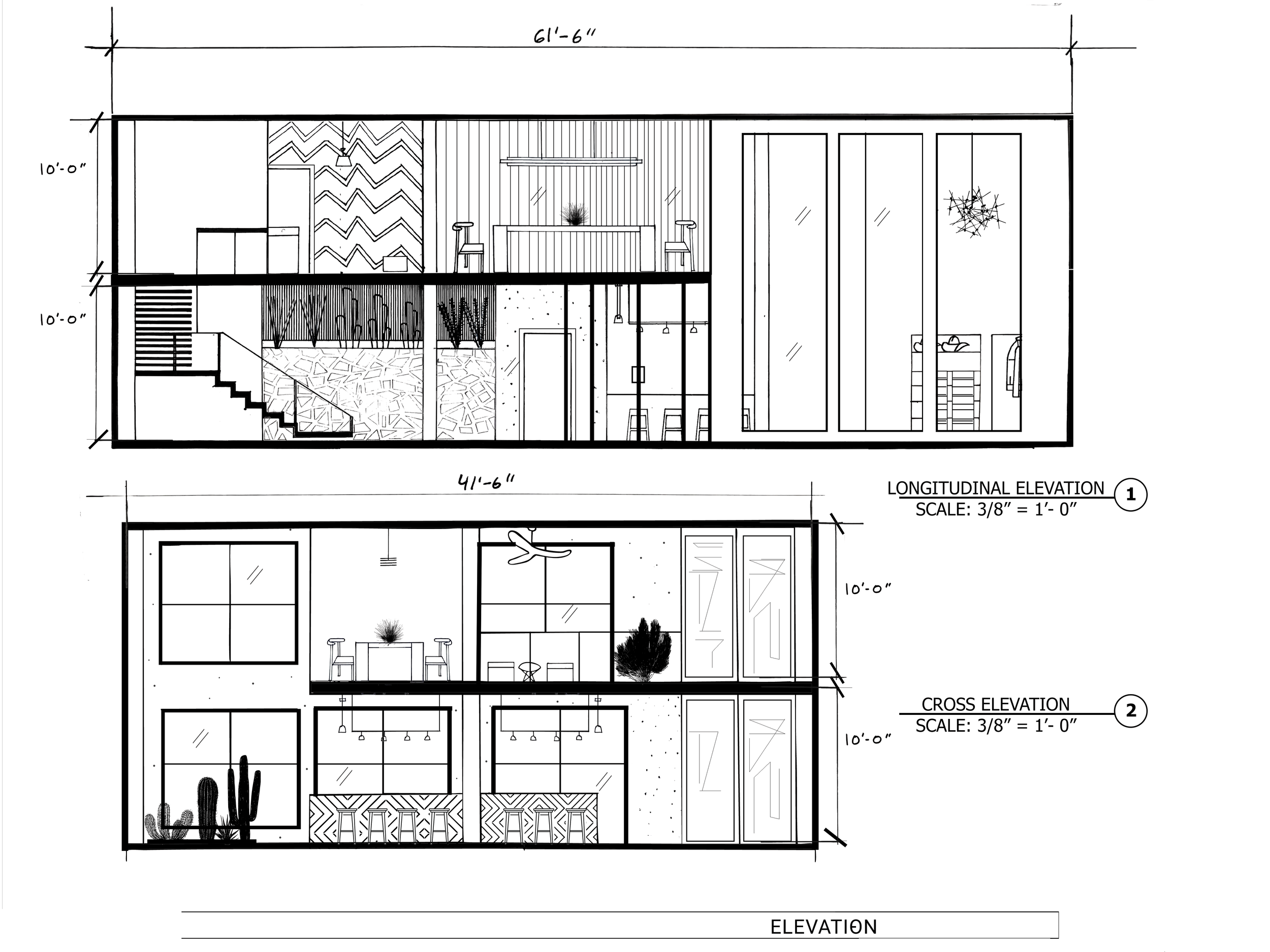
Commercial Mixed Use

The new commercial mixed-use center in Marfa, Texas, embodies a seamless blend of functionality and aesthetic appeal, designed to enhance the local community’s lifestyle. This innovative project features a vibrant retail area, offering a diverse selection of shops that cater to the eclectic tastes of Marfa’s residents and visitors.

Adjacent to the retail space, the coffee and bar area invites patrons to unwind in a cozy yet stylish setting. Whether enjoying a morning espresso or an evening cocktail, this space is crafted to foster connection and relaxation.

Additionally, the center includes office spaces tailored for modern professionals seeking a dynamic work environment. Thoughtfully designed with flexible layouts and state-of-the-art amenities, these offices cater to the needs of both independent entrepreneurs and established businesses. This mixed-use center promises to be a hub of activity and interaction, enriching the Marfa community with its innovative design and versatile space.

About Marfa, Texas

Marfa, a small desert city in west Texas, is known as an arts hub. The Chinati Foundation, founded by artist Donald Judd, displays huge indoor and outdoor installations on an old army base. The Ballroom Marfa arts center hosts exhibitions, concerts and the Marfa Myths cultural festival. Outside town is a viewing platform from which the mysterious orbs known as the “Marfa Lights” phenomenon can sometimes be seen.

I chose an area that is zoned for commercial use in Marfa, Texas, to develop my program. The site is located at 403 E Highway #90, Marfa, TX 79843.

Previous
Previous

Studio AA

Next
Next

Visual Thinking