DIA ART GALLERY

The Art Foundation is presenting an art installation at the Cyclorama in Boston, Massachusetts. The first step was to research the Cyclorama and review the program.

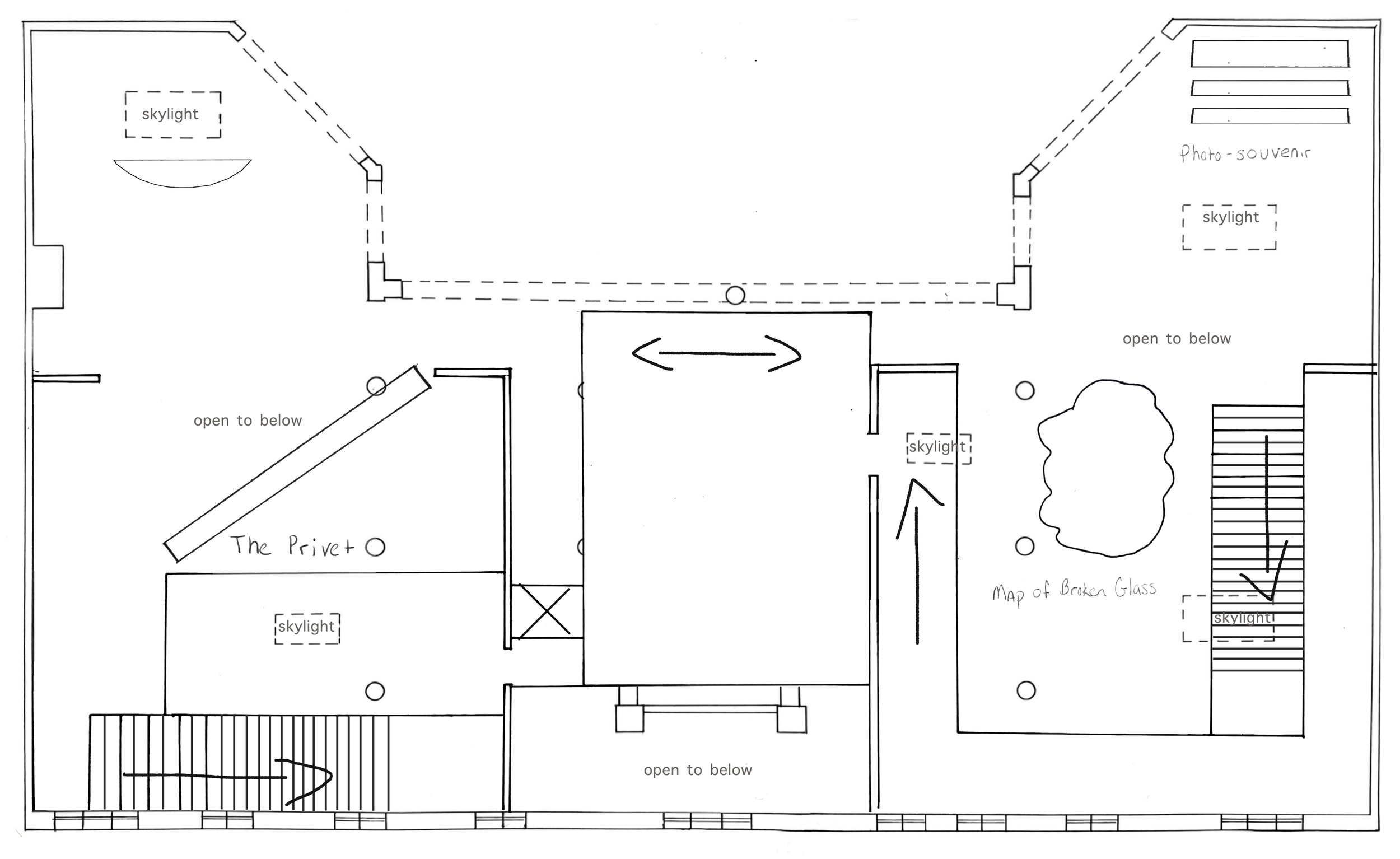
The concept behind the design for the Cyclorama centers on transparency. Throughout the design, the emphasis is on various elements of transparency. Upon arrival at the main area, guests are welcomed by a reception desk situated near the double-wide staircase. They are then invited to explore the galleries by choosing either the left or right path.

My design process started with researching the site and applying some ideas to the site. After the research, I moved into the concept sketch phase by drawing some preliminary ideas about the gallery space. I applied the concept to an actual diagram, then I moved into a build phase with the artwork to include in the model. I got a feel of the space by moving around the artwork in the concept space.

Cyclorama is located in Boston, Massachusetts, at 539 Tremont St, Boston, MA 02116.

The area is surrounded by other shops, restaurants, and retail spaces.

The Cyclorama context makes it a tourist destination, and the traffic for the art exhibition will bring various groups into the building.

Gallery #1

The first gallery, presented by the DIA Foundation, features a work by Robert Smithson titled “Map of Broken Glass” from 1969. This gallery includes a mezzanine walk-around area that provides a direct view of the sculpture.

Gallery #2

The second gallery, also by the DIA Foundation, is opposite Gallery One. It features Daniel Buren’s 2007 sculpture “Photo-souvenir: Outside the walls for two colors and two white and silver striped surfaces.” The piece offers a one-point perspective with three color layers—blue, yellow, or green—depending on the viewer’s angle, and doubles as a selfie spot.

Gallery #3

This DIA Foundation gallery, opposite the Cy-Cyclorama, is accessible via the lower-level threshold or lift. It features Chamberlain's 1997 sculpture "The Privet." A mezzanine staircase leads to a platform overlooking the sculpture. Guests reach Gallery Two via a transparent bridge or mezzanine threshold. The lift’s window offers a view into Gallery Three, sparking curiosity.

Next
Next

Studio A